
1/28

- Nybyggnadsprojekt
Brf Romberg Väst
Mellbystrand, Laholms kommun
Pris
fr. 2 995 000 kr
Bostadstyp
Lägenhet
Upplåtelseform
Bostadsrätt
Antal Rum
2-3 rum
Boarea
57-86 m²
BRF Romberg Väst har låtit uppföra 15 st superfräscha bostadsrättslägenheter i populära Mellbystrand.
Det finns både 2:or och 3:or, alla med 10 kvm uteplats eller balkong och stora fönsterpartier vända mot havet med söder/väster läge, luftiga planlösningar, hög standard, stil, smak och materialval med det lilla extra.
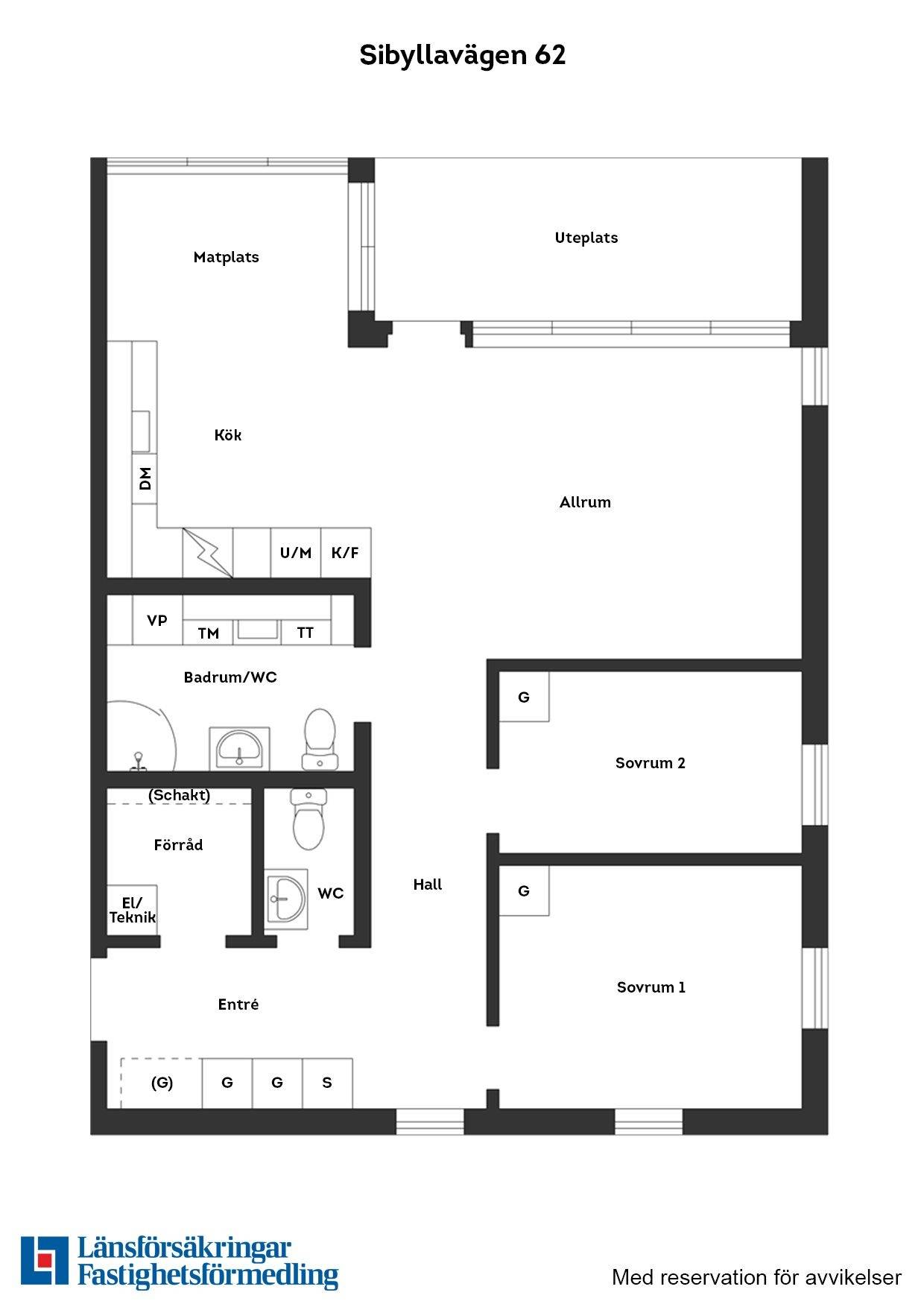
Penthouse;
När du kliver in i de översta lägenheterna i 3-våningshusen möts du av en härlig rymd med öppet upp i nock över vardagsrum och kök. I de översta lägenheterna finns både 2:or och 3:or med en klok och välplanerad planlösning.
Rostfria kapitalvaror, en tidlös design och materialkänsla med vackra ljusa färger och med inslag av en del detaljer i mörkare kontraster ger känslan av ett trivsamt boende som passar lika bra under sommar som vinter. Flera fönster och de öppna ytorna ger lägenheten en ljus och rymlig känsla. Varje detalj i lägenheten är väl genomtänkt.
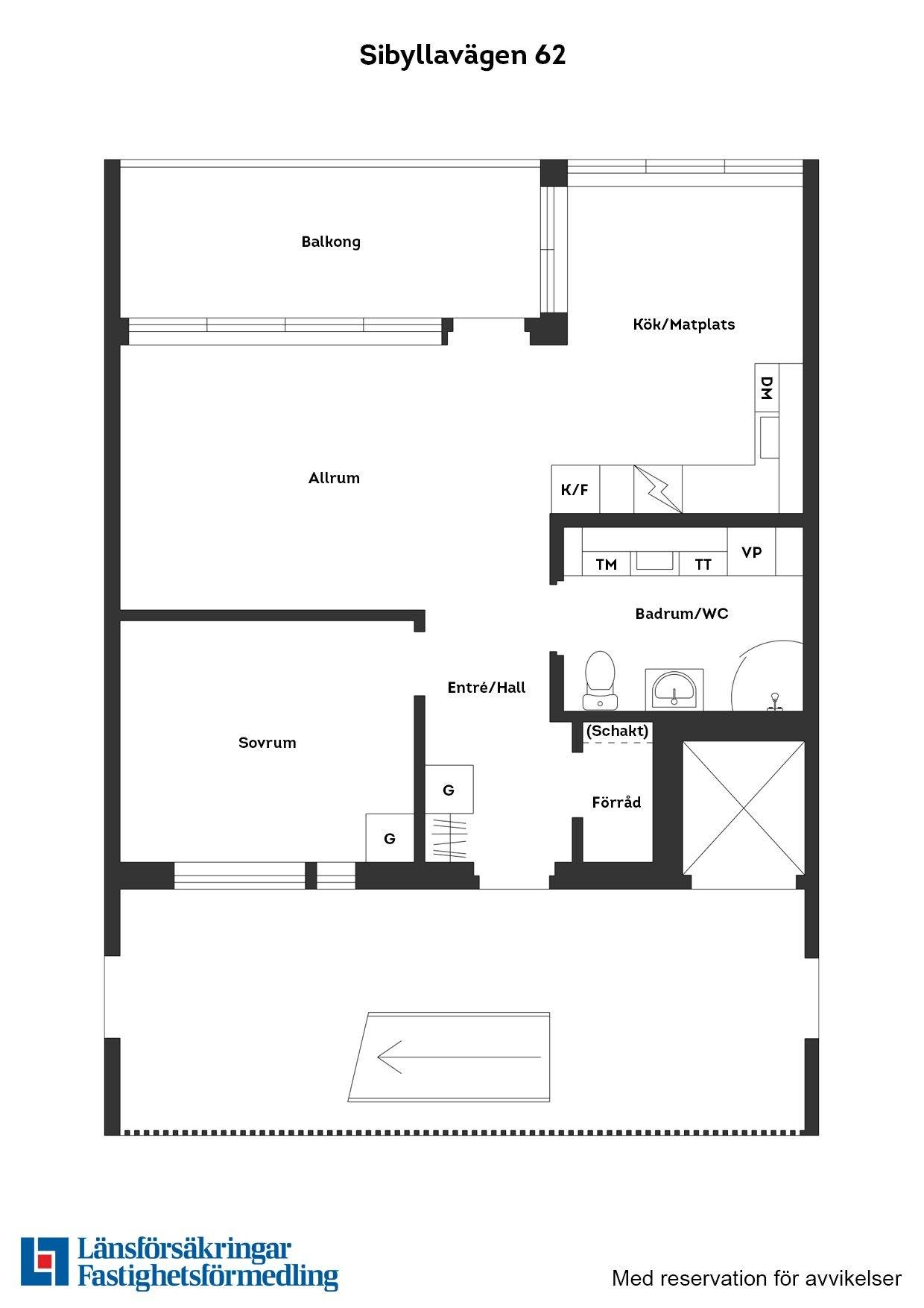
3 rok 86 kvm;
Den här lägenheten har en klok och välplanerad planlösning med en extra gästtoalett. Båda sovrummen placerade i fil mot öster för en sval inomhusmiljö och med öppen planlösning mot söder/väster som skapar ett rymligt kök och vardagsrum för trivsel och sällskap.
2 rok 57 kvm;
Den här lägenheten har en kvadratsmart planlösning som gör den väldisponerad och luftig. Sovrummet är placerat mot öster för sval inomhusmiljö och med öppen planlösning mot söder/väster som skapar trivsamma utrymmen i kök och vardagsrum för trivsel och sällskap.
Samtliga lgh har egen p-plats med laddstolpe.
Fiber finns inkopplat i varje lägenhet.
Havsutsikt från vissa av lägenheterna.
Helkaklade badrum kombinerade med tvättstuga.
Parkettgolv är genomgående i hela lägenheten.
10 kvm Balkong eller uteplats.
Läs mer om projektet hos LF Fastighetsförmedling Laholm10 lediga bostäder
3 195 000 kr
2 588 kr/mån
57 m²2 rum
vån 1/3
3 195 000 kr
2 588 kr/mån
57 m²2 rum
vån 2/3
3 495 000 kr
2 588 kr/mån
57 m²2 rum
vån 3/3
2 995 000 kr
2 588 kr/mån
57 m²2 rum
vån 1/3
Kontaktinformation
LF Fastighetsförmedling Laholm
LF Fastighetsförmedling Laholm



























